Myytävät asunnot ja muut kohteet Kotka ja lähikunnat
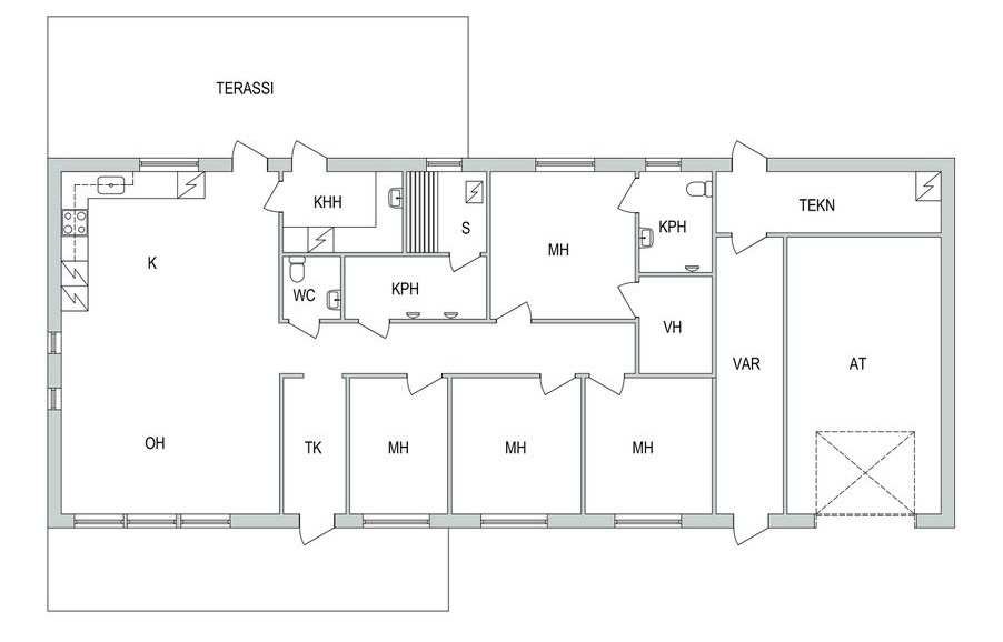
Omakotitalo, 130,0 m2
5h+k+s.os+at
2 500,00 € / kk
map Länsikaari 23, 10210 Inkoo
my_location Katso sijainti kartalla
Sovi esittely, kohdetta välittää:
- Mika Merisalo
- Kiinteistönvälittäjä, LKV
- mail_outlineLähetä sähköpostia
- smartphoneSoita +358 440214191
Sovi esittely, kohdetta välittää:
- Mika Merisalo
- Kiinteistönvälittäjä, LKV
- mail_outlineLähetä sähköpostia
- smartphoneSoita +358 440214191
Länsikaari 23, Inkoo, Västerkulla
Inkoon keskustan kupeessa uusi omakotitalo odottelee uusia asukkaita !
Kiinnostuitko kohteesta?
Kysy lisätietoja ja varaa oma esittelyaikasi!
toimisto@kymenasuntokeskus.fi
Kiinnostuitko kohteesta?
Kysy lisätietoja ja varaa oma esittelyaikasi!
toimisto@kymenasuntokeskus.fi
Länsikaari 23 kartalla
, Länsikaari 23, 10210 InkooPerustiedot
| Kohdenumero | 21854680 |
| Sijainti | Inkoo, Västerkulla Länsikaari 23 |
| Tyyppi | Omakotitalo |
| Huoneistoselitelmä | 5h+k+s.os+at |
| Huoneiden lukumäärä | 5 |
| Makuuhuoneiden lukumäärä | 4 |
| Sauna | Oma sauna |
| Parveke | Ei |
| Asuinpinta-ala | 130,0 m2 |
| Muut tilat | 65,0 m2 |
| Kokonaispinta-ala | 195,0 m2 |
| Yleiskunto | Hyvä |
| Kerros | 1 / 1 |
| Rakennusvuosi | 2025 |
| Käyttöönottovuosi | 2025 |
| Vapautuu | Heti |
Hinta ja kustannukset
| Vuokra | 2 500,00 € / kk |
Tilat ja materiaalit
| Keittiön varustus | Jääkaappi ja pakastin: jääkaappi, pakastin Seinät: maalattu Lattia: laminaatti Muut varusteet: liesituuletin, mikroaaltouuni, astianpesukone |
| Olohuone | Seinät: maalattu Lattia: laminaatti |
| Makuuhuone | Seinät: maalattu Lattia: laminaatti |
| Kylpyhuone | Varusteet: pesukoneliitäntä, lattialämmitys, wc-istuin, suihku, peilikaappi Seinät: kaakeli Lattia: laatta |
| Kodinhoitohuone | Seinät: kaakeli Varusteet: pesukoneliitäntä, lattialämmitys, lattiakaivo, pyykkikaapit, pöytätaso Lattia: laatta |
| Erillinen WC | Lattia: laatta Seinät: kaakeli |
| Saunan kiuas | Sähkökiuas |
| Saunan pinnat | Seinät: puu Lattia: laatta |
Lisätiedot
| Yleiskunto | Rakennus on uusi |
| Lämmitysjärjestelmä | Ilmavesilämpöpumppu |
| Kiinteistötunnus | 149-480-2-210 |
| Tontin omistus | Oma |
| Tontin pinta-ala | 1 182,0 m2 |
| Rakennusmateriaali | Puu |
| Katto | Tyyppi: Harjakatto Kate: Peltikate Kunto: Hyvä |
| Viemäri | Kunnan |
| Vesi | Kunnan |
| Energiatodistus | Ei |
| Viat ja vahingot | Vesivahinko: ei Kosteusvahinko: ei Home-/mikrobi- tai muita sisäilmaongelmia: ei Muita erityisiä ongelmia: ei |
Välitysliike
| Yhteystiedot |
Kymen Asuntokeskus Oy Kymenlaaksonkatu 2, 48100 KOTKA toimisto@kymenasuntokeskus.fi 05-214 191 |
infoTäydelliset kohdetiedot saat tilaamalla myyntiesitteen, ota yhteyttä välittäjään.
Sovi esittely, kohdetta välittää:
- Mika Merisalo
- Kiinteistönvälittäjä, LKV
- mail_outlineLähetä sähköpostia
- smartphoneSoita +358 440214191
- Omakotitalo, 130 m2
- 5h+k+s.os+at
- map Länsikaari 23, 10210 Inkoo
- my_location Katso sijainti kartalla
